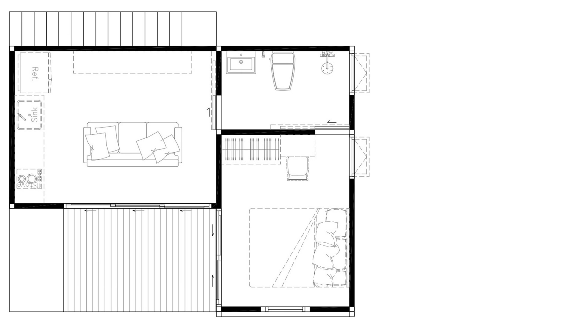
บ้านน็อคดาวน์สำเร็จรูป Monster M-B2.1 บ้านสไตล์โมเดิร์นนมีระเบียงชั้น 2 ตอบโจทย์ทุกความต้องการของชีวิตทันสมัย 1 ห้องนอน, 1 ห้องนั่งเล่น, 1 ห้องน้ํา ดไีซน์สวยหรูใช้โทนสีดํา-เทา ตัดกับสีน้ําตาลได้สวยงาม มีที่นั่งเล่นชั้นดาดฟ้า รับลมสบายๆ อากาศถ่ายเทได้ดีตัวบ้านเป็นหลังคาจั่วสูง ระบายอากาศได้ดีห้องนั่งเล่นมีประตูกระจกบานใหญ่ ได้เห็นวิว บรรยากาศภายนอกตัวบ้าน ดูสบายตา เพื่อเป็นการเพิ่มความผ่อนคลาย
view 3Dบ้านน็อคดาวน์สำเร็จรูป Monster ผลิตจากวัสดุที่จะช่วยให้คุณประหยัดไฟฟ้า หมดปัญหาปลวกกวนใจ วัสดุที่ใช้ไม่ลามไฟ ทั้งหมดนี้มาจากวัสดุที่เลือกใช้เป็นผนัง ISO WALL ที่มีคุณสมบัติพิเศษ เช่นเดียวกับที่ใช้ในโรงงานอุตสาหกรรมอาหาร ห้องคลีนรูม ที่สามารถควบคุมอุณหภูมิได้เป็นอย่างดี สามารถลดเสียงรบกวนจากภายนอกได้ดีเยี่ยม นอกจากนั้นแล้วยังมาพร้อมกับฉนวนกันความร้อน ที่จะช่วยให้ตัวบ้านน็อคดาวน์เย็นขึ้นกว่าเดิม และช่วยประหยัดไฟฟ้าไปในตัวอีกด้วย
บ้านที่มีสไตล์ที่โดดเด่นในแบบตัวเอง ตอบโจทย์ทุกความต้องการของชีวิตทันสมัย สะท้อนรสนิยมเฉพาะตัวของคุณได้อย่างลงตัว เราคือคำตอบของคุณเราให้บริการก่อสร้างบ้านน็อคดาวน์อย่างครบวงจร
