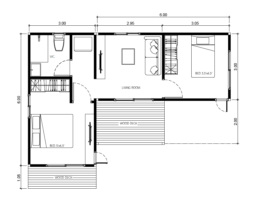
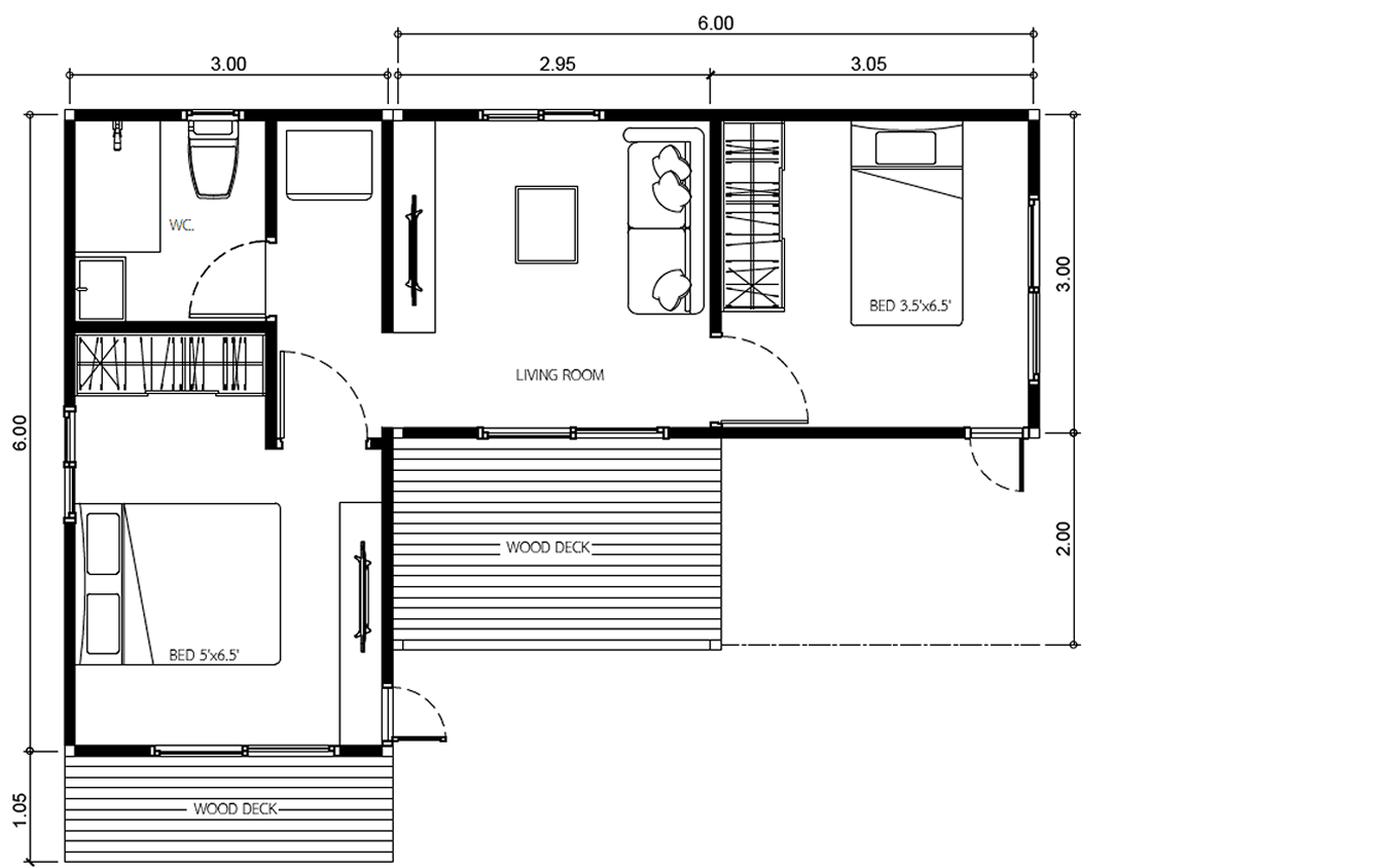
บ้านน็อคดาวน์สำเร็จรูป Monster M-B8 บ้านสไตล์โมเดิร์น ตอบโจทย์ทุกความต้องการของชีวิตทันสมัย 2 ห้องนอน , 1 ห้องนั่งเล่น , 1 ห้องน้ํา เน้นที่ความเรียบง่ายของรูปทรงและจัดพื้นที่ใช้สอยให้ได้ประโยชน์สูงสุด โทนสีแสดงถึงความสงบและสบายตา ไม่มีความฉูดฉาด ดูสุขุมมั่นคง สีเทาปูนเปลือย น้ําตาลลายไม้ ดูมีความเป็นธรรมชาติ แปลนเป็นตัวแอลมีห้องนั่งเล่นตรงกลางเชื่อมพื้นที่ระหว่าง 2 ห้องนอน และติดกับระเบียงซึ่งเป็นตัวเชื่อมระหว่างภายนอกบัานและภายใน
view 3Dบ้านน็อคดาวน์สำเร็จรูป Monster ผลิตจากวัสดุที่จะช่วยให้คุณประหยัดไฟฟ้า หมดปัญหาปลวกกวนใจ วัสดุที่ใช้ไม่ลามไฟ ทั้งหมดนี้มาจากวัสดุที่เลือกใช้เป็นผนัง ISO WALL ที่มีคุณสมบัติพิเศษ เช่นเดียวกับที่ใช้ในโรงงานอุตสาหกรรมอาหาร ห้องคลีนรูม ที่สามารถควบคุมอุณหภูมิได้เป็นอย่างดี สามารถลดเสียงรบกวนจากภายนอกได้ดีเยี่ยม นอกจากนั้นแล้วยังมาพร้อมกับฉนวนกันความร้อน ที่จะช่วยให้ตัวบ้านน็อคดาวน์เย็นขึ้นกว่าเดิม และช่วยประหยัดไฟฟ้าไปในตัวอีกด้วย
บ้านที่มีสไตล์ที่โดดเด่นในแบบตัวเอง ตอบโจทย์ทุกความต้องการของชีวิตทันสมัย สะท้อนรสนิยมเฉพาะตัวของคุณได้อย่างลงตัว เราคือคำตอบของคุณเราให้บริการก่อสร้างบ้านน็อคดาวน์อย่างครบวงจร
