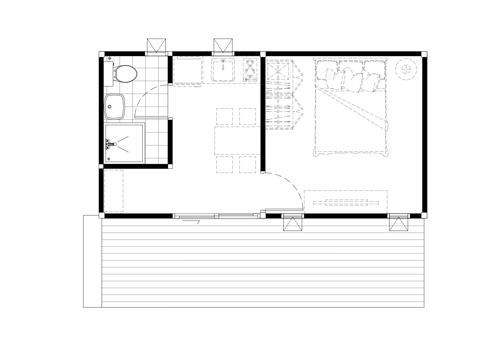
บ้านน็อคดาวน์สำเร็จรูป Monster S-B2 - พื้นระเบียงไม้เทียม wpc, หลังคาระเบียงมุงเมทัลชีท พื้นภายในกระเบื้องยางลายไม้ - ผนัง isowall 3'' ด้านนอกลายไม้ ด้านในชนิดเรียบ - หลังคามุงเมทัลชีทหุ้มฉนวน pu foam 1'' - ฝ้าเพดานยิปซั่มบอร์ดฉาบเรียบทาสี - อุปกรณ์ไฟฟ้าครบชุดของ panasonic หรือเทียบเท่า - ห้องน้ำสุขภัณฑ์ชักโครก, อ่างล้างหน้า, ห้องอาบน้ำสำเร็จรูปของ COTTO หรือเทียบเท่า พร้อมอุปกรณ์ครบชุด, ถังบำบัดน้ำเสีย ํ 800 ลิตร ยี่ห้อ DOS พร้อมงานระบบสุขาภิบาลทั้งระบบ
view 3Dบ้านน็อคดาวน์สำเร็จรูป Monster ผลิตจากวัสดุที่จะช่วยให้คุณประหยัดไฟฟ้า หมดปัญหาปลวกกวนใจ วัสดุที่ใช้ไม่ลามไฟ ทั้งหมดนี้มาจากวัสดุที่เลือกใช้เป็นผนัง ISO WALL ที่มีคุณสมบัติพิเศษ เช่นเดียวกับที่ใช้ในโรงงานอุตสาหกรรมอาหาร ห้องคลีนรูม ที่สามารถควบคุมอุณหภูมิได้เป็นอย่างดี สามารถลดเสียงรบกวนจากภายนอกได้ดีเยี่ยม นอกจากนั้นแล้วยังมาพร้อมกับฉนวนกันความร้อน ที่จะช่วยให้ตัวบ้านน็อคดาวน์เย็นขึ้นกว่าเดิม และช่วยประหยัดไฟฟ้าไปในตัวอีกด้วย
บ้านที่มีสไตล์ที่โดดเด่นในแบบตัวเอง ตอบโจทย์ทุกความต้องการของชีวิตทันสมัย สะท้อนรสนิยมเฉพาะตัวของคุณได้อย่างลงตัว เราคือคำตอบของคุณเราให้บริการก่อสร้างบ้านน็อคดาวน์อย่างครบวงจร
