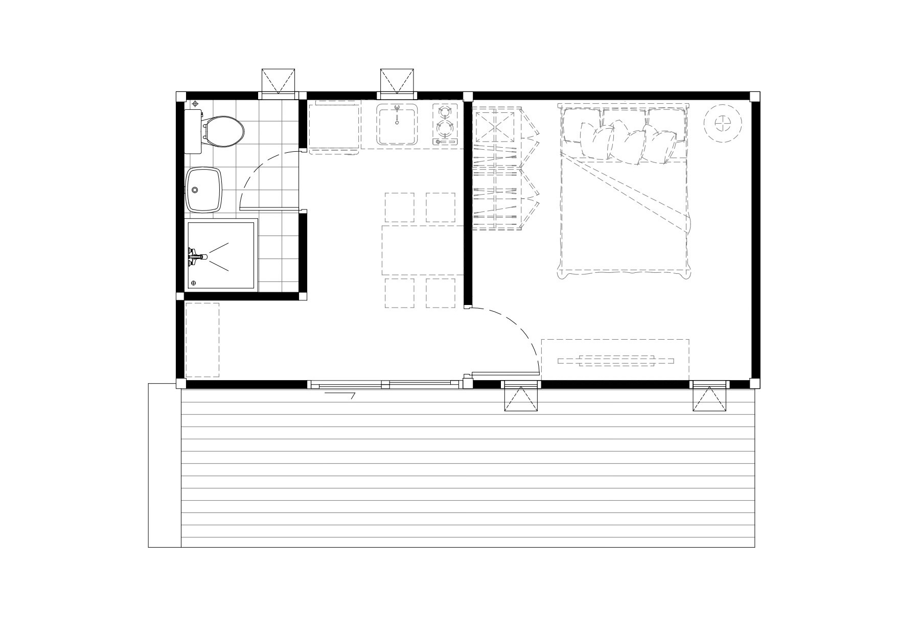
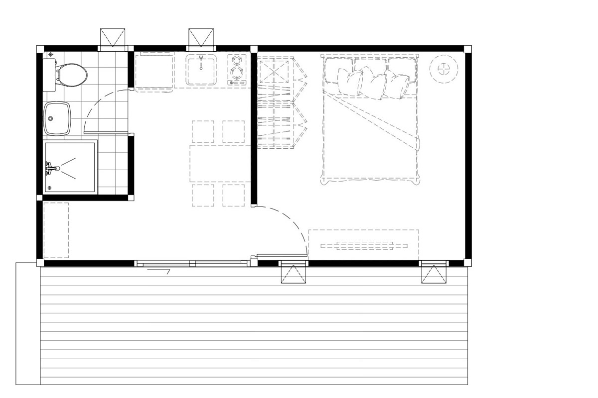
บ้านน็อคดาวน์สำเร็จรูป Monster S-B3 บ้านสไตล์ มินิมอล 1 ห้องนอน , 1 ห้องน้ำ หลังคาทรงจั่ว ฝ้าสูง ระบายอากาศได้ดี โทนสีขาว ครีม และไม้ธรรมชาติ ให้ความรู้สึกโปร่ง โล่ง สะอาดตา มีพื้นที่นั่งเล่นด้านหน้าพร้อมเก้าอี้ไม้และกระถางต้นไม้ สะท้อนความเรียบง่ายแต่ใช้ประโยชน์ได้จริง
view 3Dบ้านน็อคดาวน์สำเร็จรูป Monster ผลิตจากวัสดุที่จะช่วยให้คุณประหยัดไฟฟ้า หมดปัญหาปลวกกวนใจ วัสดุที่ใช้ไม่ลามไฟ ทั้งหมดนี้มาจากวัสดุที่เลือกใช้เป็นผนัง ISO WALL ที่มีคุณสมบัติพิเศษ เช่นเดียวกับที่ใช้ในโรงงานอุตสาหกรรมอาหาร ห้องคลีนรูม ที่สามารถควบคุมอุณหภูมิได้เป็นอย่างดี สามารถลดเสียงรบกวนจากภายนอกได้ดีเยี่ยม นอกจากนั้นแล้วยังมาพร้อมกับฉนวนกันความร้อน ที่จะช่วยให้ตัวบ้านน็อคดาวน์เย็นขึ้นกว่าเดิม และช่วยประหยัดไฟฟ้าไปในตัวอีกด้วย
บ้านที่มีสไตล์ที่โดดเด่นในแบบตัวเอง ตอบโจทย์ทุกความต้องการของชีวิตทันสมัย สะท้อนรสนิยมเฉพาะตัวของคุณได้อย่างลงตัว เราคือคำตอบของคุณเราให้บริการก่อสร้างบ้านน็อคดาวน์อย่างครบวงจร
