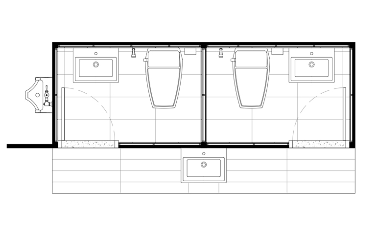
ห้องน้ําน็อคดาวน์สำเร็จรูป Monster S-E2 ห้องน้ําสไตล์โมเดิร์น โทนสีดําตัดกับสีเทาดูแล้วสบายตา สุขภัณฑ์ทันสมัย ใช้งานสะดวก ระแนงโลโก้ชาย-หญิง เพิ่มความโดดเด่น ดูแล้วปลอดโปร่ง อากาศถ่ายเทได้ดี สะอาดทุกมุมมอง
view 3Dบ้านน็อคดาวน์สำเร็จรูป Monster ผลิตจากวัสดุที่จะช่วยให้คุณประหยัดไฟฟ้า หมดปัญหาปลวกกวนใจ วัสดุที่ใช้ไม่ลามไฟ ทั้งหมดนี้มาจากวัสดุที่เลือกใช้เป็นผนัง ISO WALL ที่มีคุณสมบัติพิเศษ เช่นเดียวกับที่ใช้ในโรงงานอุตสาหกรรมอาหาร ห้องคลีนรูม ที่สามารถควบคุมอุณหภูมิได้เป็นอย่างดี สามารถลดเสียงรบกวนจากภายนอกได้ดีเยี่ยม นอกจากนั้นแล้วยังมาพร้อมกับฉนวนกันความร้อน ที่จะช่วยให้ตัวบ้านน็อคดาวน์เย็นขึ้นกว่าเดิม และช่วยประหยัดไฟฟ้าไปในตัวอีกด้วย
บ้านที่มีสไตล์ที่โดดเด่นในแบบตัวเอง ตอบโจทย์ทุกความต้องการของชีวิตทันสมัย สะท้อนรสนิยมเฉพาะตัวของคุณได้อย่างลงตัว เราคือคำตอบของคุณเราให้บริการก่อสร้างบ้านน็อคดาวน์อย่างครบวงจร
