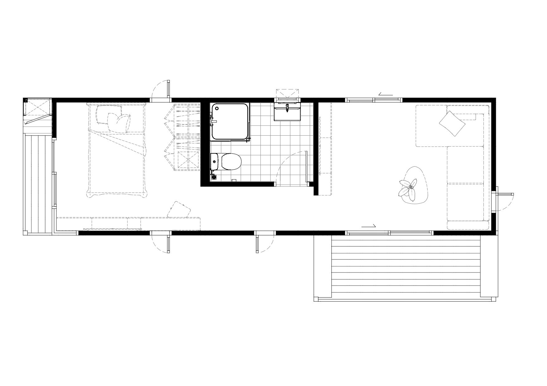
บ้านน็อคดาวน์สำเร็จรูป Monster M-B5 บ้านสไตล์โมเดิร์น ตอบโจทย์ทุกความต้องการของชีวิตทันสมัย รูปทรงสีเหลี่ยม 2 ห้องนอน , 1 ห้องนั่งเล่น , 1 ห้องน้ํา ผนังสีเทาและพื้นไม้สีน้ำตาลมีความทันสมัย สุขุม ลึกลับ มีเสน่ห์ ส่วนห้องนั่งเล่นหน้าต่างบานใหญ่เพิ่มมุมมองและระบายอากาศได้ดีและเชื่อมต่อกับระเบียงทําให้ มีพื้นที่ใช้สอยมากขึ้นและเพิ่มกิจกรรมกึ่ง outdoor
view 3Dบ้านน็อคดาวน์สำเร็จรูป Monster ผลิตจากวัสดุที่จะช่วยให้คุณประหยัดไฟฟ้า หมดปัญหาปลวกกวนใจ วัสดุที่ใช้ไม่ลามไฟ ทั้งหมดนี้มาจากวัสดุที่เลือกใช้เป็นผนัง ISO WALL ที่มีคุณสมบัติพิเศษ เช่นเดียวกับที่ใช้ในโรงงานอุตสาหกรรมอาหาร ห้องคลีนรูม ที่สามารถควบคุมอุณหภูมิได้เป็นอย่างดี สามารถลดเสียงรบกวนจากภายนอกได้ดีเยี่ยม นอกจากนั้นแล้วยังมาพร้อมกับฉนวนกันความร้อน ที่จะช่วยให้ตัวบ้านน็อคดาวน์เย็นขึ้นกว่าเดิม และช่วยประหยัดไฟฟ้าไปในตัวอีกด้วย
บ้านที่มีสไตล์ที่โดดเด่นในแบบตัวเอง ตอบโจทย์ทุกความต้องการของชีวิตทันสมัย สะท้อนรสนิยมเฉพาะตัวของคุณได้อย่างลงตัว เราคือคำตอบของคุณเราให้บริการก่อสร้างบ้านน็อคดาวน์อย่างครบวงจร
