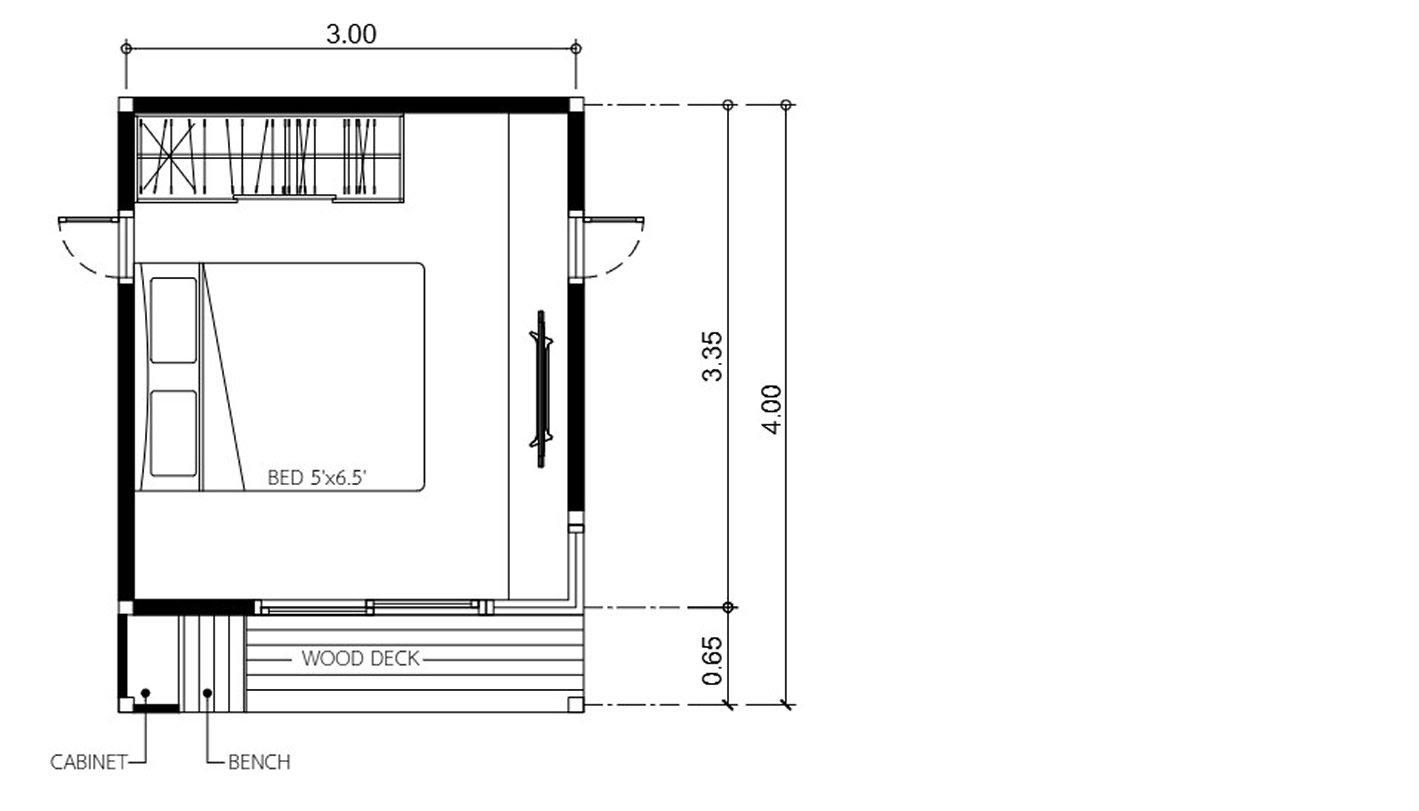
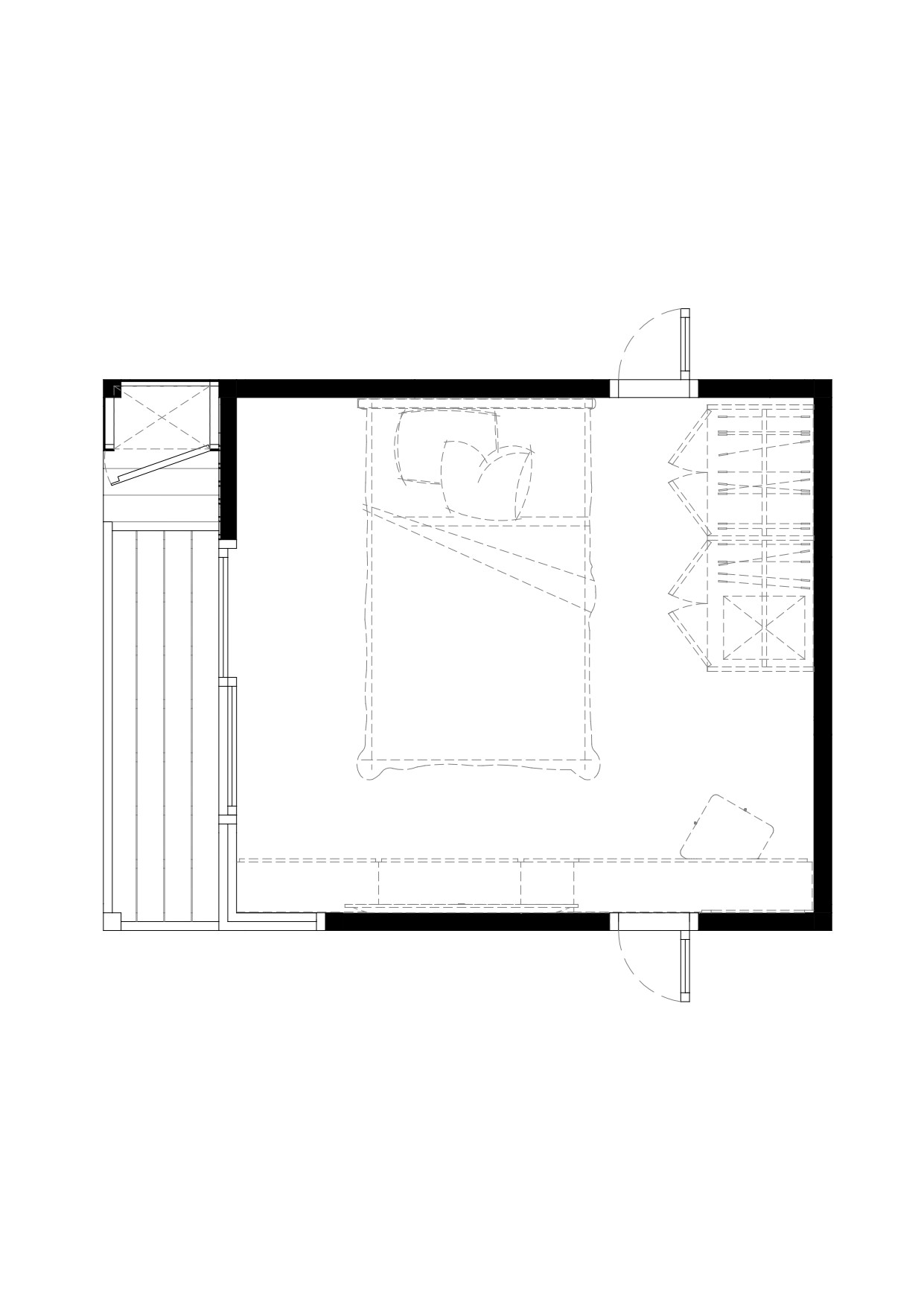
บ้านน็อคดาวน์สำเร็จรูป Monster S-B4 บ้านสไตล์โมเดิร์น 1 ห้องนอน / นั่งเล่น ทรงกล่องสี่เหลี่ยม เหมาะกับส่วนต่อเติมของบ้านเพื่อเพิ่มพื้นที่ใช้ประโยชน์ โทนสีขาวและสีน้ําเงินแสดงถึงความทันสมัย สร้างความโดดเดน่ และสะดุดตาได้มากขึ้น
view 3Dบ้านน็อคดาวน์สำเร็จรูป Monster ผลิตจากวัสดุที่จะช่วยให้คุณประหยัดไฟฟ้า หมดปัญหาปลวกกวนใจ วัสดุที่ใช้ไม่ลามไฟ ทั้งหมดนี้มาจากวัสดุที่เลือกใช้เป็นผนัง ISO WALL ที่มีคุณสมบัติพิเศษ เช่นเดียวกับที่ใช้ในโรงงานอุตสาหกรรมอาหาร ห้องคลีนรูม ที่สามารถควบคุมอุณหภูมิได้เป็นอย่างดี สามารถลดเสียงรบกวนจากภายนอกได้ดีเยี่ยม นอกจากนั้นแล้วยังมาพร้อมกับฉนวนกันความร้อน ที่จะช่วยให้ตัวบ้านน็อคดาวน์เย็นขึ้นกว่าเดิม และช่วยประหยัดไฟฟ้าไปในตัวอีกด้วย
บ้านที่มีสไตล์ที่โดดเด่นในแบบตัวเอง ตอบโจทย์ทุกความต้องการของชีวิตทันสมัย สะท้อนรสนิยมเฉพาะตัวของคุณได้อย่างลงตัว เราคือคำตอบของคุณเราให้บริการก่อสร้างบ้านน็อคดาวน์อย่างครบวงจร
